Technische Daten
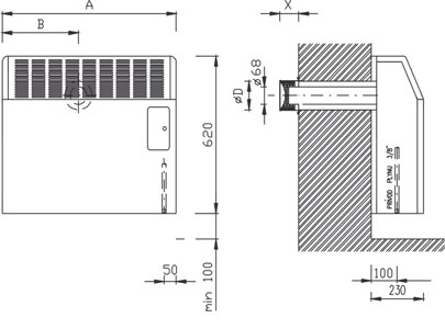
Dimensionsdiagramm:

| Mass in mm | A | B | D | X |
| PR 2 | 444 | 177 | 120 | 78 |
| PR 4 | 720 | 315 | 120 | 85 |
| PR 5 | 720 | 315 | 155 | 85 |
| PR 2K | 444 | x | x |
Schornsteinöffnung:

Montage des Heizkörpers an der Wand:

Technische Merkmale:
MODRATHERM Gasheizkörper sind Geräte der Klasse C1 – geschlossene Geräte mit externer Luftzufuhr über einen Luftzug und Abgasabführung durch die Wand nach außen – sowie Geräte der Kategorie II2,3 – zur Verbrennung von Gasen der Klasse 2 (Erdgas H₂) und Klasse 3 (Propan) sowie von Propan-Butan-Gemischen. Die Brennkammer aus Stahlblech ist emailliert. Die Abgasabführung erfolgt durch die Außenwand bis zu einer Dicke von 60 cm. Der Warmluftheizkörper benötigt keinen Stromanschluss. Die kombinierte Gasarmatur ermöglicht die individuelle Einstellung der Raumtemperatur im Bereich von 13 bis 38 °C.
Tabelle mit technischen Daten:

